一、鋼鋁復合非隔熱型防火窗(鋁包鋼耐火窗),采用外層為鋁合金型材,內層為鋼型材的設計方法,既有鋼材受火時的骨架作用,又有鋁型材的靚麗外觀。是現今市面上能媲美各大建筑耐火完整性外窗的優質產品。
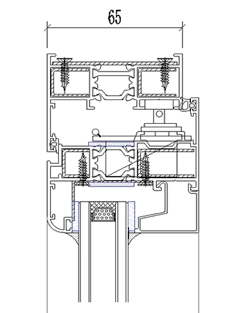
恒保鋁包鋼耐火窗產品結構(詳詢致電:13828027016):
外層采用1.4mm厚鋁材,表面可采用粉末噴涂或氟碳噴涂,也可采用陽極氧化、電泳等不同的處理方式,及有不同的顏色選擇。
內層采用1.2mm厚的鍍鋅鋼板,冷軋成型,具有優異的防銹能力,如采用彩涂鋼板,防銹能力更佳。
鋁型材與鋼型材的尺寸準確,使得兩者組合成一體,不須焊接,切口簡單的防銹處理,通過專用的連接件,即可組合成窗。
產品性能--滿足建筑外窗所需的五大性能優點:
1、 抗風壓性能:9級
2、 水密性能:6級
3、 氣密性能:8級
4、 熱功性能:2.0w/(m · K)
采用不同的玻璃,可達到不同的遮陽要求,如采用LowE玻璃,隔熱型材,K值可達到2.0,實際依據訂單玻璃選用的配置。
5、 防火性能:C1.0h
本產品根據《建筑設計防火規范》GB50016-2014對住宅避難間外窗的要求,專門研發生產,可達到C類非隔熱防火窗,耐火完整性1.0小時的要求。

鋼鋁復合非隔熱型防火窗(鋁包鋼耐火窗)
二、斷橋鋁耐火窗,是在普通鋁合金窗的基礎上增加防火功能,從外觀看是一樣的,但其內在是完全不相同(可以通過其截面示意圖直觀看出)。普通鋁合金窗因鋁材料的限制,鋁合金其熔點為600多攝氏度,在達到熔點溫度下會熔化,框架變軟導致整窗失去完整性從而坍塌,在標準火災溫度曲線下,火災發生10分鐘以后室內溫度已經超過600攝氏度,達到鋁合金的熔點,但為了讓鋁合金窗具備防火功能,其中一些廠家會在鋁合金中空層內填充一些不燃性材料(具有一定的阻隔熱傳導的物質),或者會在斷橋鋁耐火窗結構上增加一些鋼質的固定件以維持鋁合金熔化后仍能保持框架的穩定性達到0.5小時、1小時不會坍塌和躥火。但是這種只有鋁合金結構或者含有鋼質固定件的斷橋鋁耐火窗真的能在實際應用中起到真實耐火不坍塌、不躥火嗎?這就要廠家有一個成熟的生產制作工藝和采用真實有效的材料為前提。



上述兩張圖就是斷橋鋁耐火窗的結構節點圖。
三、通過對比鋁包鋼耐火窗與斷橋鋁耐火窗的節點,如下圖:

鋁包鋼耐火窗

斷橋鋁耐火窗
可直觀看出鋁包鋼耐火窗是兩層結構的,外層為鋁合金型材,內層為鍍鋅鋼型材,當在標準火災溫度曲線下,火災發生10分鐘以后室內溫度已經超過600攝氏度,達到鋁合金的熔點,外層鋁合金開始熔化但內層的鍍鋅鋼(其熔點達到1500多攝氏度),在火災發生后1個小時甚至更長時間都能保持優異的完整性。
其實“耐火窗”在我國標準體系中沒有明確的術語定義,是目前防火窗生產廠家對具有耐火完整性的建筑外窗的一種習慣叫法?!澳突鸫啊笔请S著GB50016-2014《建筑設計防火規范》的實施才逐步投入使用。按照該規范要求,具有耐火完整性的窗,需要按照GB/T12513-2006《鑲玻璃構件耐火試驗方法》的規定試驗,滿足相應耐火完整性0.5h或1.0h的要求,但對是否須具備自動關閉功能,規范并無明確規定,由此產生了歧義。然而在具體實踐中,消防檢測部門要求非隔熱鑲玻璃構件(帶活動扇)安裝窗扇啟閉控制裝置,并按照GB/T12513-2006《鑲玻璃構件耐火試驗方法》和GB16809-2008《防火窗》來檢測。針對不同行業之間的理解,《建筑設計防火規范》國家標準管理組也做出相關解釋,認為此類窗應盡量具備自動關閉功能。
在《建筑設計防火規范》(GB50016-2014)中,耐火窗主要用于建筑外窗,如建筑高度54米以上住宅樓避難間、住宅樓敞開連廊所面對的建筑外窗以及當建筑物上下開口之間設置防火玻璃墻時等情況。傳統防火窗具有一定的耐火隔熱性,分為甲級、乙級、丙級防火窗,常應用于室內防火分區的防火墻或隔斷,如建筑物與中庭相連的門窗、有棚頂的步行街兩側商鋪、100米以上的避難層(間)、高層病房樓等。
四、但是無論鋁包鋼耐火窗還是斷橋鋁耐火窗兩者都存在一個腐蝕問題,其中鋁包鋼耐火窗:鋁與鋼兩者在長時間相互接觸的情況下會發生電腐蝕,但具體需要多長的時間會腐蝕穿,暫未有數據統計出來;而斷橋鋁耐火窗中的填充物更是直接腐蝕鋁合金材料,此前也有不少反饋出現漏漿情況,鋁合金被腐蝕穿(但也是一小部分的聲音不排除那些使用了劣質填充物的)。
五、斷橋鋁耐火窗廣泛應用于北方,原因之一是其節能保溫性比較好,而南方地區尤其廣東省對鋼質耐火窗(相對單價便宜)和鋁包鋼耐火窗的應用更多!但兩者使用的玻璃都一定是防火玻璃,若是使用鋼化玻璃那無論是什么框架系統都是假冒產品!
文章源自: 防火窗
鶴山市恒保防火玻璃廠有限公司 http://www.400396.com